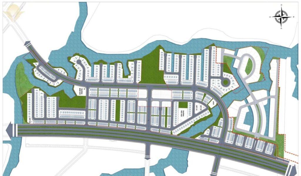
Mặt bằng tổng thể, quy hoạch dự án Gold Coast Vũng Tàu
Thông tin mặt bằng Gold Coast Vũng Tàu được nhiều khách hàng tìm hiểu để từ đó biết được căn nhà trong tương lai của mình như thế nào. Trong bài viết này, quý khách hàng hãy cùng các chuyên viên Vietnamland cùng tìm hiểu về thông tin này nhé!
Quy hoạch tổng thể mặt bằng dự án Gold Coast Vũng Tàu
Gold Coast Vũng Tàu hiện hữu lên tại thành phố biển Vũng Tàu như một tuyệt tác nghệ thuật khắc hoạ hài hoà cùng cảnh quan thiên nhiên trong lành, thơ mộng. Tổng diện tích quy hoạch của dự án vào khoảng 40 ha.
Cùng mật độ xây dựng khá thấp chỉ 25% và phần lớn của dự án được dành cho cảnh quan không gian sống xanh, hệ thống tiện ích hiện đại cho cuộc sống vượt qua ngàn mong đợi của chủ nhân.
Các khu nhà ở thấp tầng được bố trí quy hoạch tinh tế và gần gũi tự nhiên nhất cho không gian xanh trong lành và làn gió biển tươi mới hình thành nên bức tranh sống động và đầy cảm xúc. Cuộc sống của cư dân mỗi ngày đều là những trải nghiệm mới mẻ cho hành trình tái tạo năng lượng sống mới cho nguồn cảm hứng bất tận.

Mb tổng thể khu đô thị Gold Coast Vũng Tàu
Mặt bằng chi tiết sản phẩm Gold Coast Vũng Tàu
Công ty Cổ phần Tập đoàn Eco Pearl City là chủ đầu tư của dự án đã quy hoạch các sản phẩm thấp tầng gồm biệt thự, shophouse có diện tích đa dạng từ: 120m2 – 250 m2 – 300 m2 – 400 m2 để khách hàng lựa chọn.
Cụ thể các sản phẩm của dự án bao gồm:
+ Biệt thự đơn lập: diện tích thiết kế 300m2 và có 2 tầng cao + 1 tầng tum

MB biệt thự đơn lập
+ Biệt thự đơn lập góc: diện tích 992m2 với 3 tầng cao

Mb biệt thự đơn lập góc
+ Biệt thự song lập: Diện tích 250m2 có 3 tầng cao

MB biệt thự song lập
+ Shophouse: Diện tích từ 108m2 – 290m2 có thiết kế gồm 3 tầng + 1 tum

Mặt bằng shophouse
Thiết kế biệt thự Gold Coast Vũng Tàu
Với mỗi loại hình sản phẩm tại dự án đều có những phong cách kiến trúc thiết kế đa dạng khác nhau. Đối với không gian biệt thự thì khi khách hàng bước chân vào đây như lạc vào thế giới thanh bình, giản dị và gần gũi tự nhiên nhất nhưng vẫn không kém phần tinh tế và sang trọng.
Với lối kiến trúc hoài cổ kiêu sa thì từng căn biệt thự hiện hữu đầy mê hoặc, quyến rũ. Điểm nhấn là hình ảnh mái ngói vòm rộng lớn được làm từ đất nung thủ công Tây Ban Nha với nét cổ điển và ấm áp hoà cùng hương sắc của cây cối xanh mát.

Nhà mẫu biệt thự
Từ ô cửa sổ lớn của các căn biệt thự đã giúp chủ nhân của chúng hướng ra vườn cây rực rỡ sắc màu và làn gió mát lành thổi qua là bản giao hưởng giữa thiên nhiên và kiến trúc độc đáo. Các căn biệt thự là một chốn nghỉ ngơi gần gũi tự nhiên. Và điểm nhấn là bến du thuyền riêng biệt để mọi người được tận hưởng trải nghiệm du thuyền sang trọng hiếm có.
Biệt thự song lập nổi bật như một bức tranh theo phong cách Địa Trung Hải cho không gian sống Địa Trung Hải tinh tế trong từng chi tiết nhỏ nhất. Không gian sống là sự hòa quyện giữa màu nâu đỏ của đất và màu sắc của cát cùng màu xanh của biển cả.
Từng căn biệt thự song lập với tên gọi Romantic Villas hình thành như một cặp đôi hoàn hảo, đối xứng và hoà quyện với nhau toát lên từ sự thanh thoát trong từng chi tiết và lãng mạn. Gia chủ được sinh sống trong ngôi nhà mang lại sự thư thái với những khoảng xanh mát mắt được bao bọc xung quanh.
Thiết kế shophouse Gold Coast Vũng Tàu
Các căn shophouse của dự án là nơi giao thoa giữa kinh doanh đầu tư sinh lời và phong cách sống sôi động. Vị trí của các căn shophouse được bố trí nằm dọc theo trục đường huyết mạch của dự án nhằm đón đầu lượng lớn du khách.

Nhà mẫu Shophouse
Từng sản phẩm được thiết kế với phong cách Địa Trung Hải mang đậm dấu ấn kiến trúc tinh tế. Mặt tiền rộng lớn và chiều cao hợp lý hình thành nên nơi kinh doanh lý tưởng, đẳng cấp. Từ đó phát huy công năng đa dạng vừa ở, kinh doanh thương mại cao cấp.
Không gian ngôi nhà được biến tấu linh hoạt nhằm tận dụng triệt để lợi thế của vị trí toạ lạc và phong cách kiến trúc. Từ đó mang lại cho chủ nhân của chúng có cuộc sống tiện nghi nhất cũng như cơ hội phát triển sự nghiệp.
Kết luận
Mặt bằng quy hoạch dự án Gold Coast Vũng Tàu hoàn hảo để hình thành một dự án BĐS cao cấp và cũng là một kiệt tác nghệ thuật đích thực, tinh tế hoà quyện cùng thiên nhiên hoang sơ. Từng không gian sống đẳng cấp và đầy cảm hứng cho môi trường sống lý tưởng.
Thông tin liên quan tới dự án, quý khách hàng vui lòng liên hệ:
CÔNG TY CỔ PHẦN DỊCH VỤ MÔI GIỚI VIETNAM LAND
Địa chỉ: 280A17 Lương Định Của, Phường An Phú, TP Thủ Đức, Thành Phố Hồ Chí Minh
Hotline: 0912 13 23 23
Email: info@vietnamland.vn



